Kirkebøen Hytter
Preview only — see all hotel photos
See all 93 photos 1 /
93
9.5
4 anmeldelser
Best options for your travel dates
Vis hotellet på kartet
Kirkebøen Hytter
Beskrivelse:
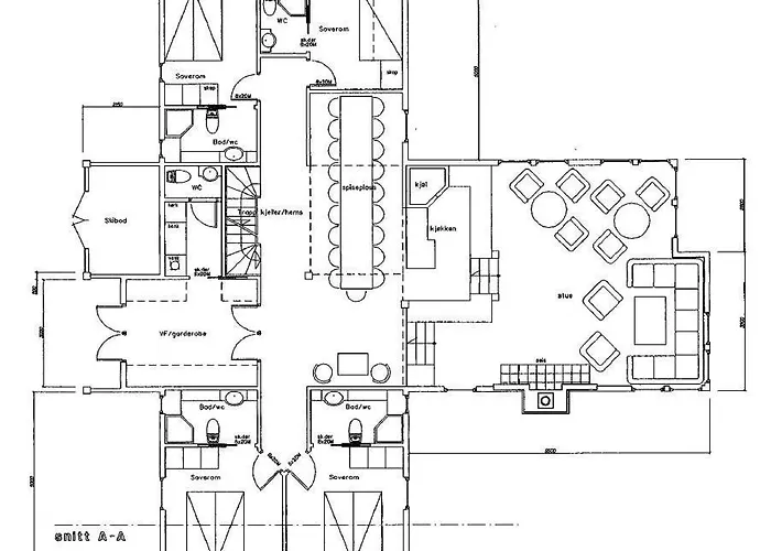
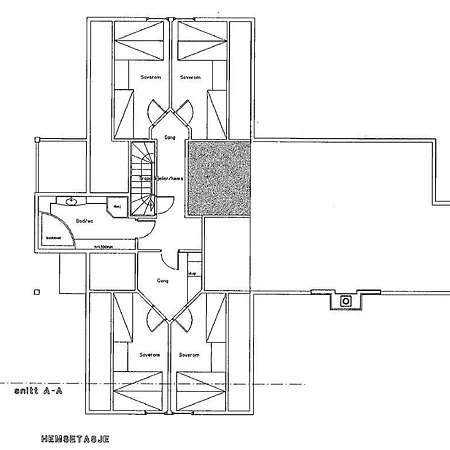
Den 7-roms Kirkeboen Hytter Villa ligger omtrent 20 minutters gange fra Hemsedal kyrkje kirke og bare 1,1 km fra fjellet Ulsakstolen gård. Denne Hemsedal-villaen har et boblebad og en badstue for avslapning.
Rom:
I tillegg er et separat toalett og en dusj tilgjengelig.
Spisemuligheter:
Kirkeboen Hytter Villa ligger bare en kort kjøretur fra Bekkedalen busstopp. Området er populært for de som liker hesteridning, bowling og ski.
Beliggenhet:
Overnattingen ligger en 10-minutters spasertur fra sentrum av Hemsedal. Elmas Handel tilbyr skandinaviske spesialiteter og ligger omtrent 13 minutters gange unna. Denne eiendommen ligger omtrent 25 minutters gange fra Hemsedal Ski Resort.
Mer +
Mindre -
Vennligst vent, vi sjekker ledige rom for deg.
Søker hotell
Bekvemmeligheter
Hovedfunksjoner
- Gratis Wi-Fi
- Sport aktiviteter
- Spa og avslapning
- Kjæledyr
Fasiliteter
Generell:
- Røyking på stedet er forbudt
- Gratis Wi-Fi på fellesområdene
- Parkering
- Tillatt med kjæledyr
- Ski lagring
- Barberbutikk
- Røykvarslere
- Brannslukkere
- Tilgang med nøkkel
Spisning:
- Vannkoker
- Kjøkkenutstyr/ kjøkkenredskaper
- Utendørs spiseplass
- Picknickområde/ Bordene
Fritid & Sport:
- Vannpark
- Solterrasse
- Hageområde
- Grillfasiliteter
- Fritid/ TV-rom
- Badstue
- Jacuzzi
- Kanopadling
- Skitur
- Vandring
- Hesteridning
- Sykling
- Golfbane
- Fisketur
Tjenester:
- Vaskeri
- Butikker/ Kommersielle tjenester
Romfasiliteter:
- Oppvarming
- Sitteområde
- Patio
- Terrasse
- Hagemøbler
- Te- og kaffefasiliteter
- Spisebord
- Vaskemaskin
- Flatskjerm tv
- Parkettgulv
Politikk
Innsjekking: fra 17:00 til 23:59
Utsjekking: til 11:00
Kart
Lokale severdigheter
Attraksjoner
- Hemsedal Church (1217 km)
- Hemsedal skisenter (1289 km)
- Ulsakstolen (648 km)
- Hit og Dit Heisen (1529 km)
- Venashovda (654 km)
- Stavkroa (1399 km)
- Hemsedal Ski Centre (1324 km)
- Hemsedal Burger AS (606 km)
- Hovtun kjopesenter (649 km)
- Hemsedal Tourist Office (766 km)
Flyplasser
- Fagernes flyplass, Leirin (78 km)
Anmeldelser
Skriv en anmeldelse
100% bekreftede anmeldelser
9.5 /10